
Description:-
The Construction Quality Control (QA/QC) of building materials, supervision and project management conducted by a team of well experienced Architects and Engineers.
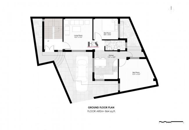
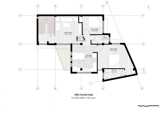
With 5 beds 1 bed with attached toilet-bathroom, plot of 4 aana 1 paisa 1daam and a construction of 2940 sq. ft. with premium exterior and interior, SouthWest facing, recently built and modern high quality finishes.
Take a look at the house areas, with premium finishing, design and unique spaces, all designed for relaxation and warm days with family and friends. A good camera will be essential to keep those memories.
The property is located in peaceful location within the urbanization with the privacy and tranquility you are looking for.
This semi-bungalow has it all!
Book your appointment, to see for yourself this paradise, your next home, is the first step to achieve your dream.
We are waiting for you..
**𝐇𝐨𝐮𝐬𝐞 𝐒𝐩𝐞𝐜𝐢𝐟𝐢𝐜𝐚𝐭𝐢𝐨𝐧:-

2.5 storey house

5 bedrooms, 2 living room, 2 kitchen, and dining

4 toilets and bathroom

Well water

Solar panel

Parking space for 2 cars and bikes

Earthquake resistant

Laundry area